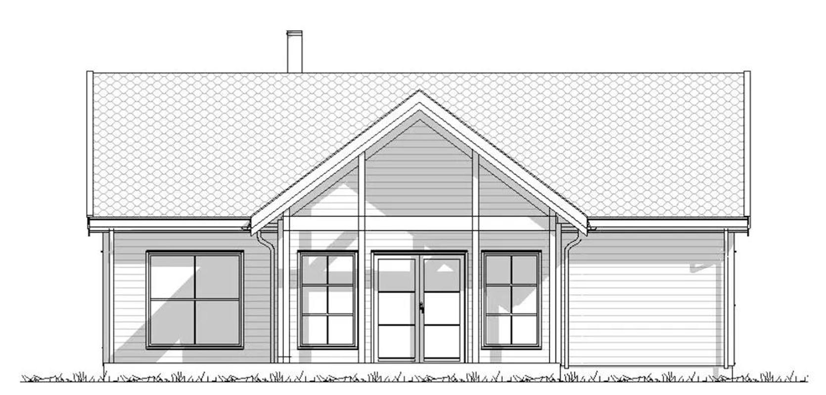
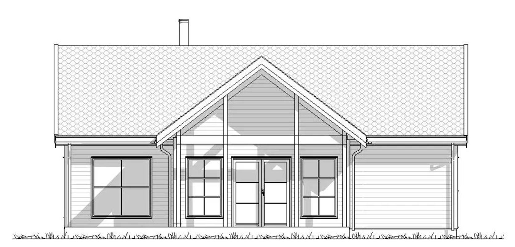
Lindevik er en vinkelhytte med utbygget stueparti i front. Hytta byr på en romslig og åpen stue- og kjøkkenløsning med god plass til et stort spisebord. Stuen i front er romslig og perfekt til å ha en koselig sofagruppe hvor familien kan samles. De doble dørene fra stuen fører ut til en overbygd terrasse.
Hytta har to soverom - ett som kan bli foreldresoverom, og et annet med køyesenger for å imøtekomme behovene til inntil fire personer. Badet ligger i nærheten av soverommene og er tilgjengelig fra inngangspartiet.
En trapp fra inngangspartiet fører opp til en romslig hems. Med riktig innredning i andre etasje kan du sikre at det er god plass til overnatting ved behov. Du kan for eksempel dele hemsområdet inn i to separate sovealkover og et ekstra oppholdsrom. Dette gir en flott løsning for gjester eller en privat sone for de som ønsker å trekke seg tilbake og ha litt egentid.
* Alle bilder og illustrasjoner er til inspirasjon og kan avvike fra endelige tegninger.